 OVIDIO LAGOS 6200 - Sur - Rosario, Santa Fe
            
                OVIDIO LAGOS 6200 - Sur - Rosario, Santa Fe
            
         Dormitorios
                             Dormitorios
                         Cocheras
                             Cocheras
                         Baños
                             Baños
                         1407.00 m2
                                                            1407.00 m2
                                                     
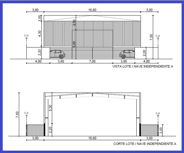
                    Desarrollo: "COMPLEJO OVIDIO LAGOS" - Ubicado sobre Av. Ovidio Lagos intersección con la calle 2101, a metros de Av. Circunvalación, presenta una accesibilidad logística privilegiada. Es parte del “Plan Integral de Suelo e Inversiones Productivas” (Ordenanza N° 10139/20, Area de Tejido 7/7) impulsado por la Municipalidad de Rosario. Mercado objetivo: Pequeñas y Medianas Empresas (PYMEs) que necesitan relocalizarse o crecer en un entorno cómodo, con servicios, conectividad y posibilidades de financiación a largo plazo. Composición: 1- Un sector industrial que incluirá 16 lotes de aproximadamente 1400 m2, y uno de 1650 m2, incluyendo cada uno 4 cocheras propias, individuales, todo con acceso por calle N° 2101. En cada lote se proyecta la construcción de una nave cubierta, cumpliendo con las normativas vigentes en cuanto a ocupación del suelo, alturas permitidas y retiros obligatorios. 2- Al frente, sobre Av. Ovidio Lagos, se desarrollará sobre una parcela de 2.578 m² un edificio multifunción destinado a actividades comerciales y de servicios complementarios. Este espacio incluirá locales, oficinas y estacionamiento, funcionando bajo régimen de propiedad horizontal. Este sector está pensado como un soporte ideal para acompañar las actividades del área industrial, sumando valor al conjunto del proyecto. Sostenibilidad: El proyecto incorpora criterios de eficiencia y responsabilidad ambiental. Las cubiertas de las naves estarán equipadas con aislación térmica para conservar mejor la temperatura interior tanto en invierno como en verano. Además, el sistema de desagües pluviales fue diseñadopara retener y liberar el agua de lluvia de manera controlada, evitando anegamientos y cuidando la infraestructura general. Detalles Constructivos: - Fundaciones en pilotaje de hormigón armado, in situ, con cabezales y vigas de equilibrio según cálculo de ingeniería. - Retiro de suelo vegetal y compactación con suelo cal hasta alcanzar el nivel deseado - Platea de hormigón armado fibrado con terminación de llaneado. - Estructura metálica con luces de 11 y 17 metros según el tamaño de la nave. - Mampostería cerramiento perimetral en bloques de cemento hasta 2,80 metros de altura. - Rejas perimetrales de planchuelas y perfilería metálica de 2 metros de altura. - Portón de Acceso, metálico, corredizo, de 7 metros x 5 metros (altura) - Altura máxima libre de cubierta en cumbrera: 7 mts. - Provisión de energía eléctrica de 49 KVA como máximo Condiciones Comerciales: Amplias, variadas, ágiles y a medida de cada perfil comprador incluyendo una alternativa financiera inigualable que incluye cancelación de saldo en cuotas hasta diez años. NOTA IMPORTANTE: El precio consignado corresponde al anticipo. Representa una porción del precio Total. Saldo en cuotas mensuales hasta 10 años. La primera cuota se integrará contra la toma de posesión del galpón (llave en mano).
 
                        - Código: KP430072
- Categoría: Galpones y depós...
- Estado: Activa
- Venta: USD 238.000
- Dirección: OVIDIO LAGOS 620...
- Zona: Sur
- Ciudad: Rosario
- Provincia: Santa Fe
- País: Argentina
- Piso: No definido
- Superficie total: 1407.00
- Superficie cubierta: 901
- Dimensiones del terreno: 1407
- Metros de frente: 22.60
- Metros de fondo: 62.28
- Nuevo/A estrenar: Sí
- Fecha de entrega: 01/12/2026
 
     
                             
                             
                             
                            